发布时间:2021-03-24 12:10:33 作 者:田兰 点击: 次
电机振动给料机在生产流程中,可把块状、颗粒状物料从贮料仓中均匀、定时、连续地给到受料装置中去,在砂石生产线中可为破碎机械连续均匀地喂料,并对物料进行粗筛分,广泛用于冶金、煤矿、选矿、建材、化工、磨料等行业的破碎、筛分联合设备中。
接下来将为大家介绍一下电机振动给料机的型号规格以及选型方法供大家参考:


电机振动给料机按其结构和用途可分为三种类型:振动给料机GZD型、振动给料机ZSW型、振动给料机GZZ型。
1、GZD型电机振动给料机

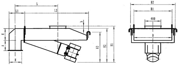
| 型号 | 生产率 t/h |
粒度 mm |
L | L1 | L2 | B | B1 | B2 | H | H1 | H2 | H3 | h | D | A | 噪声 dba |
功率 kw |
电压 v |
重量 kg |
| GZD15-Ⅰ | 15 | 40 | 600 | 295 | 700 | 250 | 380 | 210 | 100 | 660 | 590 | 540 | 50 | Ф250 | 100 | 70 | 0.15 | 220 | 84 |
| GZD15-Ⅱ | 800 | 420 | 775 | 88 | |||||||||||||||
| GZD15-Ⅲ | 1000 | 550 | 845 | 94 | |||||||||||||||
| GZD30-Ⅰ | 30 | 50 | 600 | 230 | 845 | 400 | 530 | 360 | 160 | 720 | 660 | 550 | 50 | Ф400 | 160 | 740 | 0.25 | 136 | |
| GZD30-Ⅱ | 700 | 300 | 870 | 140 | |||||||||||||||
| GZD30-Ⅲ | 800 | 375 | 895 | 144 | |||||||||||||||
| GZD30-Ⅳ | 900 | 435 | 935 | 148 | |||||||||||||||
| GZD30-Ⅴ | 1000 | 475 | 995 | 152 | |||||||||||||||
| GZD30-Ⅵ | 1100 | 525 | 1045 | 156 | |||||||||||||||
| GZD30-Ⅶ | 1250 | 675 | 1045 | 162 | |||||||||||||||
| GZD50-Ⅰ | 50 | 60 | 600 | 230 | 902 | 500 | 714 | 450 | 200 | 840 | 770 | 570 | 60 | Ф550 | 200 | 76 | 0.4 | 380 | 173 |
| GZD50-Ⅱ | 700 | 300 | 932 | 196 | |||||||||||||||
| GZD50-Ⅲ | 800 | 380 | 970 | 215 | |||||||||||||||
| GZD50-Ⅳ | 900 | 430 | 1002 | 222 | |||||||||||||||
| GZD50-Ⅴ | 1000 | 470 | 1062 | 230 | |||||||||||||||
| GZD50-Ⅵ | 1200 | 580 | 1170 | 240 | |||||||||||||||
| GZD50-Ⅶ | 1600 | 700 | 1450 | 358 |
GZD电机振动给料机具有给料机的全部性能,它装在料仓底部,用作破拱和均匀给料,有破拱、给料、截流、调流四种功能,给料松散、连续、均匀、准确、结构简单、重量轻、工作可靠、操作容易、易损件少、能耗低、噪声小于 72dB(A)、使用广泛,对老仓、方仓、圆仓与新仓均可使用。
2、ZGM型电机振动给料机
| 型号 | 安装倾角 | 入料粒度 | 振频 | 双振幅 | 功率 | 处理量 | 配用激振器 | 配用电机 | ||||
| 度 | mm | Hz | mm | Kv | t/h | 型号 | 激振力 | 型号 | 功率 | 电压 | ||
| ZGMZ-100 | 5 可调 |
≤100 | 16 | 5-7 | 2.2×2 | ≤100 | WZJY-30-6 | 30 | Y112M-6 | 2.2×2 | 380 | |
| ZGMZ-200 | ≤200 | 2.2×2 | ≤200 | |||||||||
| ZGMZ-400 | ≤300 | 6-9 | 3.0×2 | ≤400 | WZJY-50-6 | 50 | Y132S-6 | 3.0×2 | ||||
| ZGMZ-600 | 3.0×2 | ≤600 | ||||||||||
| ZGMZ-800 | 4.0×2 | ≤800 | WZJY-75-6 | 75 | Y132M1-6 | 4.0×2 | ||||||
| ZGMZ-1000 | 4.0×2 | ≤1000 | ||||||||||
| 型号 | 安装倾角 | 入料粒度 | 振频 | 双振幅 | 功率 | 处理量 | 电机型号 |
| 度 | mm | Hz | mm | Kv | t/h | ||
| ZGM-100 | 5 可调 |
≤100 | 16 | 5-7 | 0.7×2 | ≤100 | YZO-8-8 |
| ZGM-150 | ≤150 | 1.0×2 | ≤150 | YZO-10-6 | |||
| ZGM-200 | ≤200 | 2.0×2 | ≤200 | YZO-20-6 | |||
| ZGM-250 | ≤250 | 6-9 | 2.0×2 | ≤250 | YZO-20-6 | ||
| ZGM-350 | 2.5×2 | ≤350 | YZO-30-6 | ||||
| ZGM-550 | 3.7×2 | ≤550 | YZO-50-6 | ||||
| ZGM-850 | 3.7×2 | ≤850 | YZO-50-6 |
ZGM系列电机振动给料机广泛应用于煤炭行业,把原煤及粉煤从贮料仓均匀或定量给到受料设备中,它具有起动迅速,停车平稳,维修少,安装方便,结构简单等特点,是煤炭行业中给料的理想设备。
3、GZZ型电机振动给料机

GZZ系列电机振动给料机是一种新型给料设备,它以激振电机为激振源,较之电磁振动给料机和往复式给料机具有结构简单、体积小、重量轻、运行可靠、安装维修方便、噪音低、能耗小等优点。用于贮料仓及料门下快速排料和做为种量精度在 5 %的要求下连续均匀地把物料输送到受料装置中去,通过调整振动电机的激振力可以方便地改变生产率。

1、生产率的确定
本系列电机振动给料机的生产率是以河砂为标准物料给出的(堆比重为1.6T/m3)。当物料堆比重大于1.6T/m3时,其产量可按额定值选??;当物料的堆比重在1.2~1.6T/m3时,其产量可达到额定产量的0.9~1.0倍。当物料堆比重在0.8~1.2T/m3时其产量可过到额定值的0.8~0.9倍。物料堆比重小于1.6T/m3时,须适当增加料层厚度,以提高产量。对于振动给料机难于输送的物料(如滑石粉、钛白粉、白泥、面粉、粘土等),以及含水量较大的亲水性物料,则应根据试验确定产量。必要时将槽体适当倾斜安装(一般向下倾斜10~15度),以增加给料量。
2、控制箱的选择
本系列电机振动给料机配套控制箱为反接制动控制箱,它可使给料机在停车时,快速停机,使给料机迅速通过共振区,避免过大振幅对机器造成损害。该控制箱具有过流、过压、断相等?;すδ?,另可根据工艺要求,增加能耗制动、快慢加料、远程控制及无级调速等功能。用户在订购时请注明。
3、给料机使用条件
(1)环境温度不超过+40℃;
(2)在环境温度为20±5℃时,周围介质相对湿度不大于85%;
(3)周围没有严重腐蚀及影响电气绝缘的介质。
4、若空间有限可定制产品
如在选型时遇到空间距离限制宽度,可考虑将振动电机改为后置安装,减小宽度尺寸。或者是与厂家 一同设计定制一款合适的产品。
以上是对电机振动给料机规格型号及选型的介绍,小编就为大家简单的介绍到这里,若大家还有什么不明白可咨询新乡大汉机械的客服人员。
上一篇:没有了
下一篇:没有了
Copyright ? 2008-2019螺旋输送机厂家-新乡市大汉振动机械有限公司 All Rights Reserved 版权所有
网站备案号:豫ICP备09002479号-47
网址:http://m.marscamp.cn/新乡大汉机械厂家专业生产螺旋输送机、皮带输送机、提升机等机械

